Actorul Bryan Cranston impreuna cu sotia sa si-au conceput un proiect de renovare a casei de pe plaja situata in afara orasului Los Angeles. Inainte sa ceara sfatul unui specialist actorul detinea o casuta caruia le placea sa ii spuna “baraca iubirii”. Daca am incerca sa descriem vechea locuinta cred ca ar trebui sa ne ducem cu gandul la momentele hypiote din anii ’60. Exteriorul era de culoare verde cu un imprimeu inflorat.
Aveti in imaginea urmatoare aspectul initial al casei:
Desi acolo au trait clipe frumoase si s-au bucurat de mica lor casa de vacanta, au decis sa ceara ajutorul unui arhitect pentru a transforma totul intr-o locuinta de vis ecologica. Rezultatul final a fost unul de exceptie.
Va lasam in compania unor imagini ce va cor taia rasuflarea:
Nu-i asa ca totul este fascinant? Incaperi spatioase cu ferestre mari ce permit soarelui sa patrunda cu toata puterea si sa se joace printre piesele de mobilier alese cu stil.
Fatada casei, fiind mereu expusa la aerul de sare, a fost facuta din titan in loc sa foloseasca materiale din cupru sau zinc. Cranston sustine ca desi invelisul de titan a fost mai scump in comparatie cu aluminiul, a avut nevoie de ceva practic care sa nu necesite intretinere. In definitiv este casa in care vor sa isi petreaca tot restul vietii lor.
Tot acoperisul casei a fost creat ca un imens panou solar. Si-au creat o sursa de energie mult mai mare decat ar avea nevoie vreodata. De altfel a fost si dorinta actorului si a sotiei sale.
O parte a casei care fascineaza si pe orice este garajul. Aici puteti observa o serie de tehnologii inteligente cu display video. Unul din sisteme este conceput pentru a mentine casa in vid si a avea un aer lipsit de praf sau germeni. De asemnea este prevazuta cu un lift care permite parcarea etaja a masinilor. Prin aceasta solutie au economisit 400 de metri patrati si au putut adauga locuintei o camera mecanica si una speciala pentru media.
Nu-i asa ca e locul in care si voi ati vrea sa imbatraniti? Sa locuiti mereu pe plaja? Sa va invitati toti prietenii si familia?
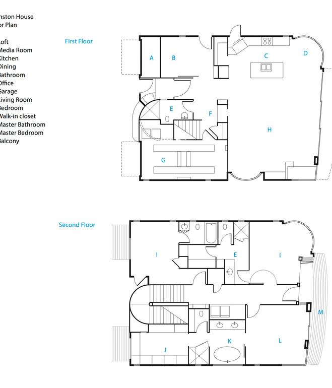
Daca va placut ideea sotilor Cranston si poate intr-o buna zi va veti dori si permite sa construiti o astfel de casa va prezentam si proiectul realizat de arhitect pe hartie:

























